HERA-Bereich – 2 mh – 5 ch – 4 Badezimmern – Klimaanlage – TV
Beschreibung
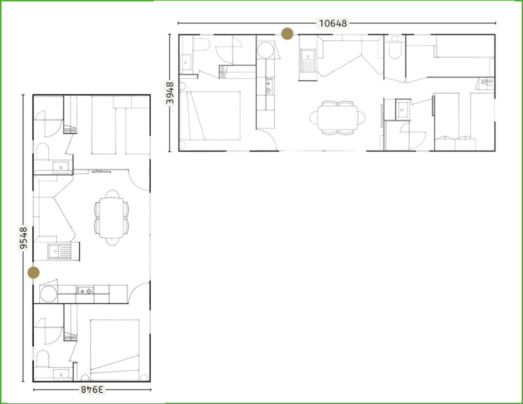
Der Héra-Bereich besteht aus zwei Mobilheimen. Er umfasst fünf Schlafzimmer und vier Badezimmer mit separaten WCs, ausgestattete Küchen (Kühl-Gefrierschrank, Geschirrspüler, elektrische Kaffeemaschine und Senseo), Fernseher, Klimaanlage (warm/kalt), Safe mit Code, eine Terrasse mit privatem Whirlpool sowie einen Stellplatz für zwei Fahrzeuge.
Dieser Bereich verkörpert Komfort und Ruhe dank seiner harmonisch aufgeteilten Wohnbereiche – ideal für einen Urlaub in der Gruppe oder mit der Familie.
